24小时咨询电话 : 15158895595   微信业务联系扫二维码

审图,我们该审些什么?

来源:dop设计(ID:dopdesign)原创作者:作者丨dop设计 编辑丨丽子

作为设计师的我们都知道,一般会在交图前的5天左右进行图纸的审图工作(上级领导审图),而在此之前,我们还有一个比较重要的工作就是自审图纸。


那么,今天我们就从以下六个方面来说说自审图纸的内容和相关注意点:


1、封面、目录、设计说明、材料表

2、平面图

3、放大图

4、立面图

5、节点图

6、门表图


图片

封面、目录、设计说明、材料表

图片

source:google.cn


1、封面

首先,应该仔细核对项目名称、版次、日期(同图框相对应)、单位名称、图纸专业等封面内容;如果项目名称都错了,那就真的是没得救了,还和业主说我们是专业的设计公司?!说了鬼信啊,反正我不信!


(PS:顺便插一句就是现在大项目都用图框参照,那么图框上面的信息修改一次就能保证正确性


2、目录

其次,关于图纸目录这项内容,通常每个公司有自己的标准模板,需要审对及注意的内容主要包括以下几点:


a、图名、图号同图框编号


b、图纸数量与图幅大小的选择


c、出图日期、修改版本日期


d、是否有本次不出图的内容并已标注


e、特殊备注内容等

图片

△图纸目录示例


3、设计说明

关于设计说明的内容,就比较繁多,然而同类型的项目又大体相似,所以在自审图纸时,通常需着重注意工程概况内容、精装修设计范围、各类图例说明、材料与工艺的说明、各类规范要求等。


这里重点说明一下,设计师们应该尤其注意规范图集是否过期,要选用现行版本。这是很容易被忽略的一点...


4、材料表

与设计说明相类似的,项目材料表在自审图纸时,需注意工程概况内容、精装修设计范围、各类图例说明、材料与工艺的说明、各类规范要求等。


除了要注意规范图集应为先行版本外,还需注意以下两点:


a、不要出现同种颜色材料的2个编号


b、平面、立面、节点、门表系统图纸标注材料要和材料表相匹配

图片

△图纸材料表示例


图片

平面图

图片

source:google.cn


1、平面布置图

a、轴号:轴号顺序是否正确、轴号尺寸是否完整,如果是多层平面图,要注意每层平面图的轴号定位、轴号尺寸等内容是否保持一致


b、文字:空间名称是否正确、字体大小是否一致。


c、门编号:门编号及类型是否按照门表图进行分类并统一标号。


d、索引:柱子的索引号、消火栓索引号等其它索引号是否正确性。


e、其他标注:楼梯及台阶的高差关系(上下标注),不同线形、范围示意或功能示意标注等。

图片

△图纸平面图示例


2、尺寸定位图

a、尺寸标注:尺寸是否是统一原则的标注,按完成面标注还是原始建筑墙标注;哪些尺寸是要标注的,哪些是不要标注的。明确后,既可以减少工作量又可以方便后期施工。

图片

△图纸尺寸定位图示例


b、索引:索引号是否按照逻辑来排序,索引号顺序和立面图纸是否对应上。


c、图例说明:检查图例说明中的材质是否可明确区分,填充图案是否正确。

图片

△图纸尺寸定位图示例


3、地坪图

地坪图包含的内容比较多,既要保证图纸全面、完整、清楚,又要保证简洁明了。通常需要审对和注意的内容可以概括为以下几点:


a、地坪铺贴的起铺点需定位


b、地坪铺贴的模块示意图(根据地面拼花的样式决定是否需要)

图片

△图纸地坪铺贴模块示意图示例


c、地坪标高标注(尤其是卫生间地坪降低了多少要标明)


d、地漏、管线等定位


e、地坪节点索引号是否和节点相同


f、门槛石材质标明(同一种门槛石可写备注上说明,不需要每个都表达)


g、不同材质要用不同的填充图案来区分


h、卫生间散水线需示意并标注相应坡度


i、家具的显示问题(通常固定家具显示,活动家具隐藏)


4、天花造型图

a、标注:每个造型的标高、尺寸、材质等(只标造型尺寸,不要标灯具)。


b、索引:检查天花节点索引号是否和节点相同。


c、显示:家具的显示问题(通常固定家具显示,活动家具隐藏)。


5、灯具定位图

a、定位:若有三级放大的图纸,则不需要灯具定位(在卫生间、电梯厅等三级放大图上面定位即可);当需要单独绘制灯具定位图时,可通过找规律,使用cl居中、EQ等关系进行定位。


b、图例:灯具图例及灯具型号是否一一对应。选用的型号是否符合设计要求。


6、综合点位定位图

综合点位定位图通常需要审对和注意的内容可以概括为以下几点:


a、点位定位是否都完整全面,是否和机电设计提资过来的内容相符


b、点位的规范要求是否满足(规范要求已经说过很多次,就不强调了)


c、点位的图例和说明是否匹配

图片

△图纸综合点位定位图图例说明示例


7、机电点位定位图

机电点位定位图通常需要审对和注意的内容可以概括为以下几点:


a、点位定位尺寸是否都完整全面,准确无误


b、特殊点位是否标注清楚,注明安装高度等具体内容


c、点位的图例、名称、说明等是否一一对应,是否表述清晰完整

图片

△图纸机电点位定位图图例说明示例


8、墙身材质索引图

在一些比较大型复杂的项目里,通常会有选择性的绘制标准段的立面和主要立面,所以那些立面不单独绘制的,就用墙身材质索引图来表达该位置立面的材料。


墙身材质索引图通常需要审对和注意的内容可以概括为以下几点:


a、不同材料之间要有明确的区分


b、选用的材料标准是否准确


c、图纸标注的表达方式是否清晰:常用的表达方式有两种:


① 注明墙体材料的标号

图片

△图纸墙身材质索引图示例


② 用不同颜色的PL虚线表示(打印的时候使用对象颜色打印即可)

图片

△图纸墙身材质索引图示例


图片

放大图

图片

source:google.cn


1、标注

放大图的标注内容通常需要审对和注意的方面可以概括为以下几点:


a、轴号、轴线及轴网的尺寸标注是否与总图保持一致


b、立面尺寸标注是否与平面图保持一致:建议立面标注只标注造型尺寸,因为所谓标的越多,可能错的越多,其他图纸能表达清楚的内容,就不要重复标注,一旦标注错误,不如不标注。


c、立面标高标注是否完整,准确:这里特别说明一下,卫生间的标高通常与楼层标高不同,需要确认卫生间标高是否有降低或抬高,需标注清楚,并与平面图保持一致。


d、卫生间洁具型号的标注是否完整,准确:既然我们标注了那么我们就要标注正确,要确保编号要同洁具选型表上面的编号相同。


2、索引

放大图的索引内容通常需要审对和注意的方面可以概括为以下几点:


a、总图的区域索引是否绘制:因为一层可能有几个电梯厅、卫生间,让看图的人清楚的知道是哪一个区域,所以总图索引是有一定必要的。


b、相应的立面索引是否绘制并完整准确,立面造型索引号是否与相应图纸匹配


3、图例说明

相对应的图纸的相关图例说明是否准确完整,注意图例的比例及线形,一些图纸因为比例及线形原因导致最终打印出来看不清楚,或与其他图例线形不一致,影响图纸表达效果。


图片

立面图

图片

source:google.cn


1、绘制内容

a、立面轴号是否需要:如果需要赶紧补上,这个问题不应该是最后才发现的,之前画的时候应该就要确认是否需要,不要到了最后才发现。


b、楼板和梁是否需要绘制:若绘制建议要么按照最终结构图纸标注准确的尺寸,要么不做尺寸标注,还是标错不如不标的原则。


c、不同材质或同材不同色的区域区分是否清楚完整:通常不同材质的区域会用不同的填充图案来区分,注意同材不同色的位置通常可以有两种表达方式:


① 采用统一的填充图案,附以相对应的颜色


② 可以通过不同的填充图案或同图案不同比例来区分


不论用哪种形式,都要做到表达的清楚完整。


d、线形区分是否明确准确:图纸中哪些是粗线,哪些是中线,哪些是细线,哪些需要淡显等等,一定要设置好,这样出来的图容易分清楚关系,同时具有一定的美观性。


e、立面与平面的关系是否绘制准确,是否绘制全面:这是最重要的一点,也是最致命的一击啊!


2、标注索引

a、横向、竖向的标注尺寸是否是统一标注距离:这个没有对错,但是却应该符合制图标准规范要求,而不仅仅觉得只是画图的一个习惯和美观的要求而已,制图应该是严谨的。


b、立面尺寸标注是否与平面图保持一致:建议立面标注只标注造型尺寸,因为所谓标的越多,可能错的越多,其他图纸能表达清楚的内容,就不要重复标注,一旦标注错误,不如不标注。


c、立面索引是否与节点图保持一致:索引号需与节点号对应一致。


d、立面的门窗等是否需要标注编号,并与门表图保持一致:根据项目需求标注。


e、立面的标高标注是否与平面图保持一致:立面标高需按照天花图和地坪图核实,特别注意天花造型标高及卫生间标高是否特殊。


f、立面的材料标注是否正确全面,标注线是否点到所标注区域或位置


g、空洞的地方需要表示为开敞或者是通往哪个区域


图片

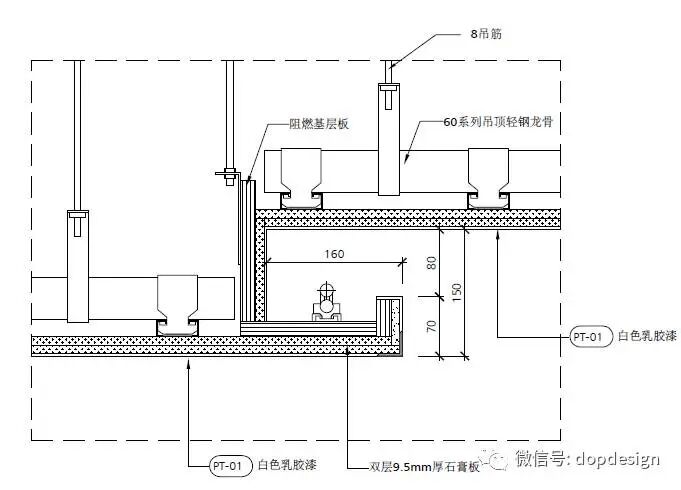
节点图

图片

source:google.cn


1、绘制内容

a、图名下方是否备注节点所在位置:备注好是哪个区域,方便了解节点是哪个地方的。


b、节点图是否与立面索引保持一致:节点号需与立面图中索引号对应一致。


c、天花节点的内部基层是否表达绘制

图片

△图纸节点图示例


d、地坪节点是否是一个区域的,若不是一区域表达出来是哪个位置的

图片

△图纸节点图示例


e、墙身踢脚需要带到地坪,表达出地坪关系

图片

△图纸节点图示例


f、地坪模块是否有放大图

图片

△图纸节点图示例


g、节点有剖段的地方加剖段线,剖到的面和看的面是否有所区别


h、固定家具竖剖面,剖到地面最好不要带到地坪结构,只画一条线即可:因为如果地面材质改了,那你这个固定家具地面也要跟着改,那还不如不画。


2、线形比例

a、节点图的比例是否合适合理:图的比例要适合,不要太大了看起来吓人,太小了看起来需要放大镜。


b、材质图案填充的比例是否与图纸比例一致或适合:与图纸比例一样,图案填充的比例要适合并整体一致。


c、线形的使用原则:图纸中哪些是粗线,哪些是中线,哪些是细线,哪些需要淡显等等,一定要设置好,这样出来的图容易分清楚关系,同时具有美观性。


图片

门表图

图片

source:google.cn


1、尺寸定位

门表图的内容相对简单,尺寸定位通常需要审对和注意的方面可以概括为以下两点:


a、立面尺寸同横剖竖剖尺寸应准确,并一一对应


b、门把手是否绘制,其高度是否有尺寸定位


2、材料标注

门表图的材料标注通常需要审对和注意的方面可以概括为以下两点:


a、材料标注样式是否统一,清晰全面


b、门的五金件是否表达


图片

有关自审图纸的内容就先给大家讲解到这里了,总之,图纸自审需要你慢慢的来一条条的去进行审查的,而不要盲目求快。



24小时全国咨询电话
151-5889-5595
在线QQ:1102351633
欢迎收藏手机网站
扫一扫加厂长微信